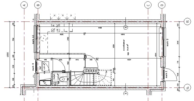
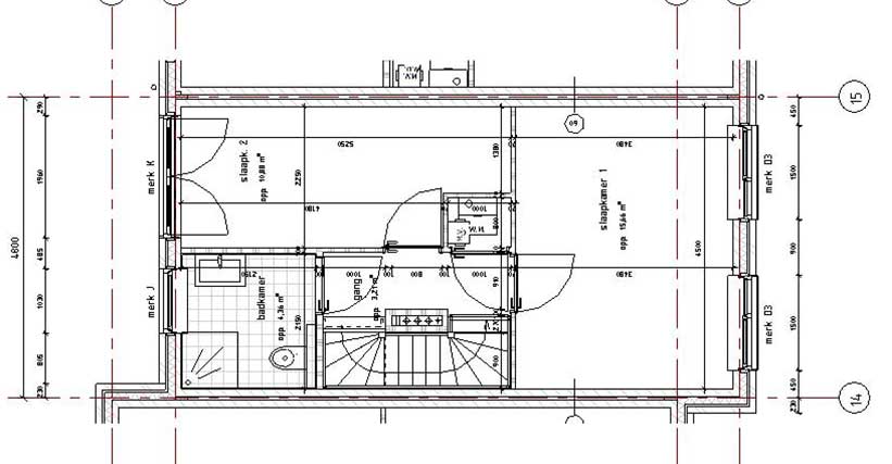
Op initiatief van Toba architecten is er in de gemeente Bodegraven Reeuwijk een Collectief Particulier Opdrachtgeverschap (CPO) project gestart. In samenwerking met de gemeente is het gelukt om zeer betaalbare starterswoningen aan de Sleutelbloem te realiseren. De woningen zijn gerealiseerd vanaf €165.000,- Vrij Op Naam (VON). De woningen hebben beukbreedte die afgestemd zijn op de wensen van de woonconsument, de toekomstige bewoner. Door het slim schakelen van de woningtype met en zonder kap (tweede verdieping) past het bouwplan binnen de stedebouwkunidge kaders. Nadat de CPO vereniging SamenBouwen.in/Bodegraven opgericht en heeft Toba architecten een collectief ontwerp gemaakt voor het exterieur en zeventien individuele woningen achter de voordeur. Voor iedere deelnemer aan het proces is uiteindelijk een woning ontworpen en gerealiseerd afgestemd op de individuele wensen en het budget.







| Cookie | Duration | Description |
|---|---|---|
| cookielawinfo-checkbox-analytics | 11 months | This cookie is set by GDPR Cookie Consent plugin. The cookie is used to store the user consent for the cookies in the category "Analytics". |
| cookielawinfo-checkbox-functional | 11 months | The cookie is set by GDPR cookie consent to record the user consent for the cookies in the category "Functional". |
| cookielawinfo-checkbox-necessary | 11 months | This cookie is set by GDPR Cookie Consent plugin. The cookies is used to store the user consent for the cookies in the category "Necessary". |
| cookielawinfo-checkbox-others | 11 months | This cookie is set by GDPR Cookie Consent plugin. The cookie is used to store the user consent for the cookies in the category "Other. |
| cookielawinfo-checkbox-performance | 11 months | This cookie is set by GDPR Cookie Consent plugin. The cookie is used to store the user consent for the cookies in the category "Performance". |
| viewed_cookie_policy | 11 months | The cookie is set by the GDPR Cookie Consent plugin and is used to store whether or not user has consented to the use of cookies. It does not store any personal data. |