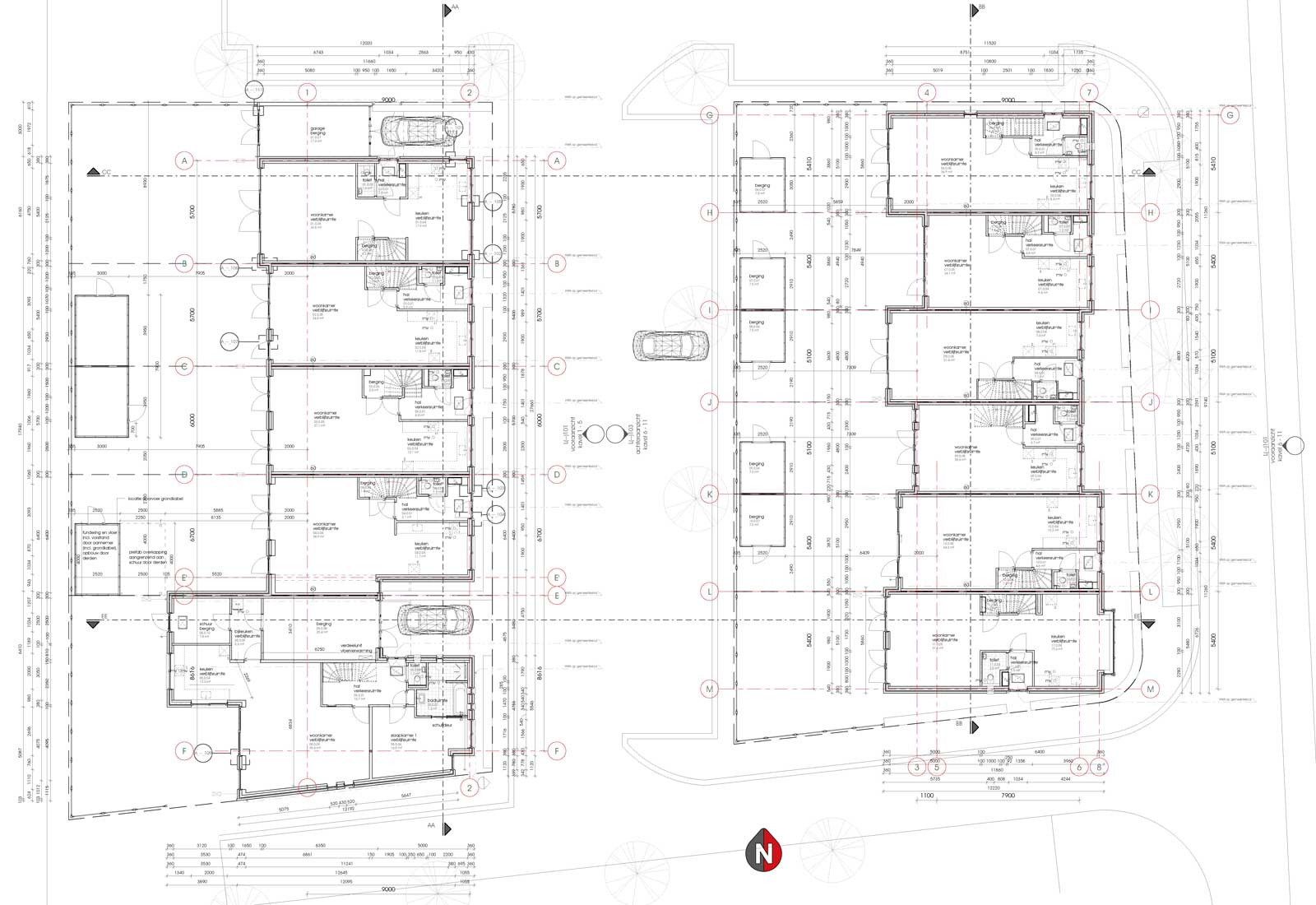
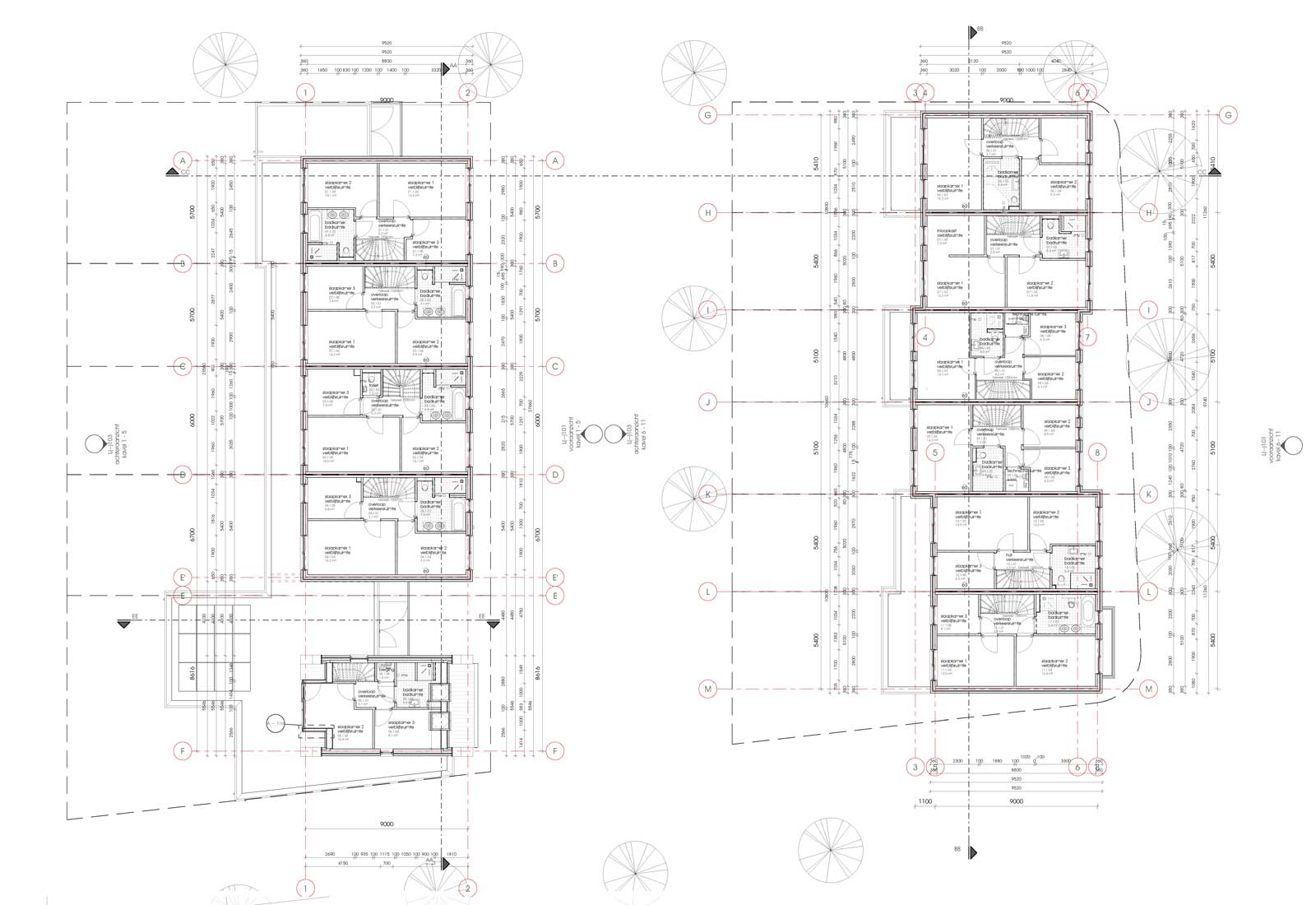
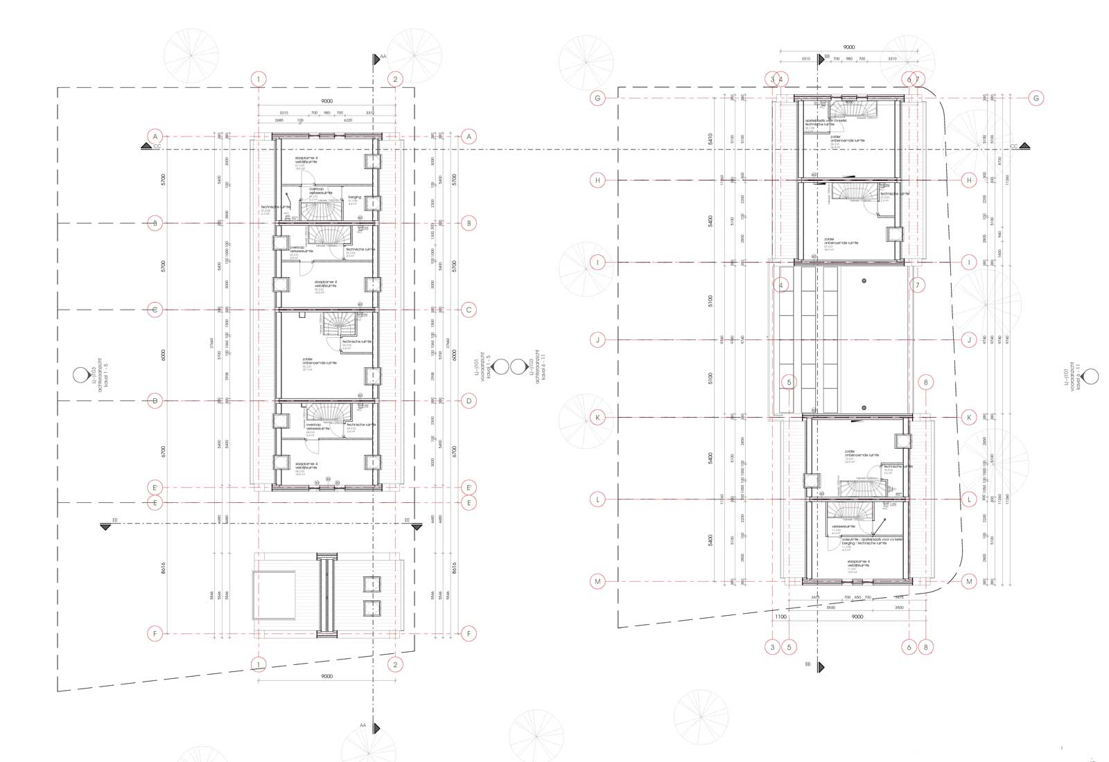
Na het succesvol verlopen 1e CPO-project van 17 starterswoningen hebben zich diverse nieuwe woonconsumenten aangemeld. De gemeente heeft voor een 2e project grond ter beschikking gesteld. Vervolgens werd de CPO vereniging SamenBouwen.in/Bodegraven opgericht en heeft Toba architecten een collectief ontwerp gemaakt voor het exterieur en elf indivuele woningen achter de voordeur. In het huidige plan zijn starterswoningen, gezinswoningen en levensloopbestendige woningen gerealiseerd.





| Cookie | Duration | Description |
|---|---|---|
| cookielawinfo-checkbox-analytics | 11 months | This cookie is set by GDPR Cookie Consent plugin. The cookie is used to store the user consent for the cookies in the category "Analytics". |
| cookielawinfo-checkbox-functional | 11 months | The cookie is set by GDPR cookie consent to record the user consent for the cookies in the category "Functional". |
| cookielawinfo-checkbox-necessary | 11 months | This cookie is set by GDPR Cookie Consent plugin. The cookies is used to store the user consent for the cookies in the category "Necessary". |
| cookielawinfo-checkbox-others | 11 months | This cookie is set by GDPR Cookie Consent plugin. The cookie is used to store the user consent for the cookies in the category "Other. |
| cookielawinfo-checkbox-performance | 11 months | This cookie is set by GDPR Cookie Consent plugin. The cookie is used to store the user consent for the cookies in the category "Performance". |
| viewed_cookie_policy | 11 months | The cookie is set by the GDPR Cookie Consent plugin and is used to store whether or not user has consented to the use of cookies. It does not store any personal data. |