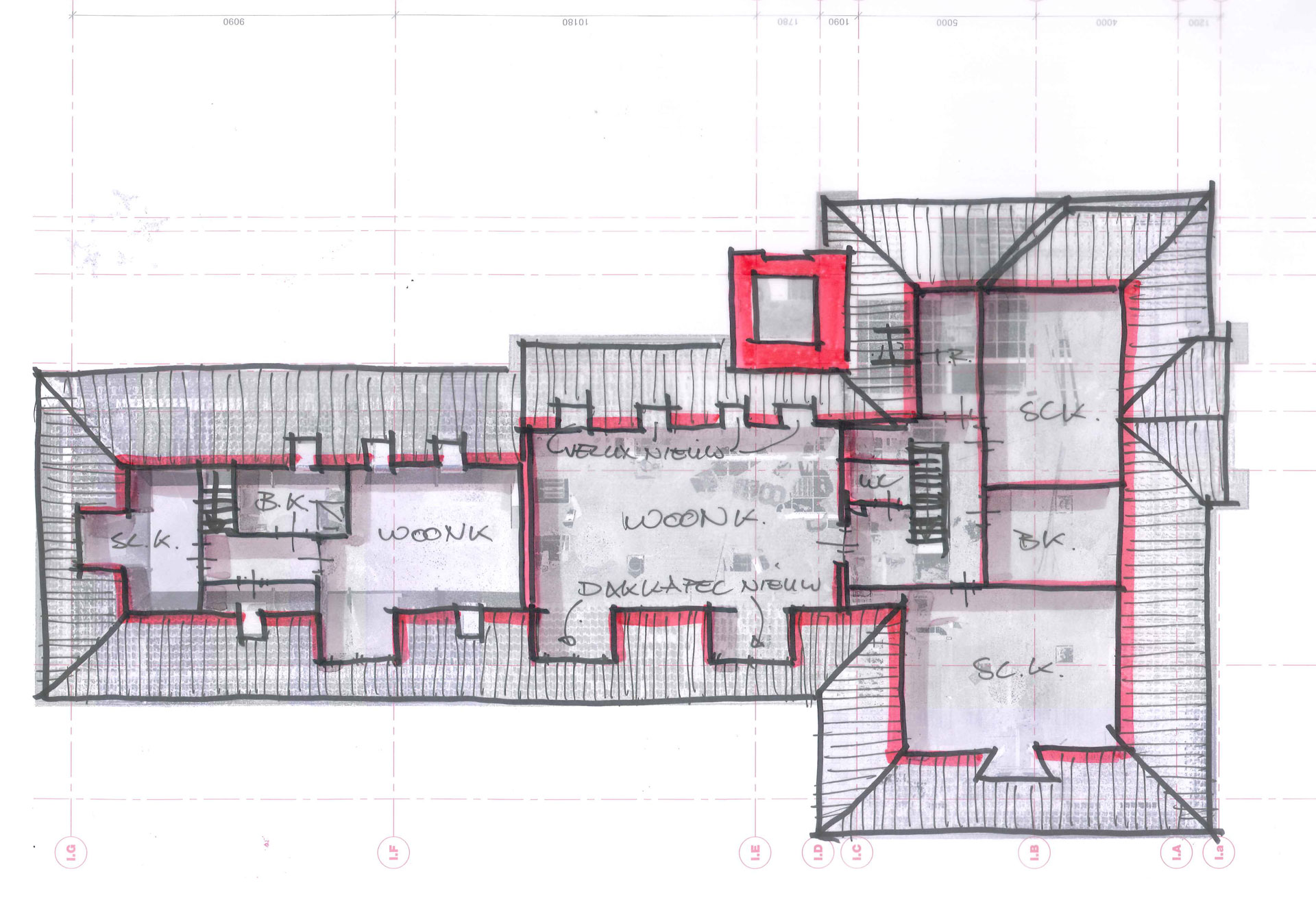
Het Raadhuis in Nieuwe Pekela is gelegen in het centrum aan het lint langs het Pekeler Hoofddiep en is gebouwd in 1938 door gemeente-architect J. Tuinhof in Interbellum-architectuur. Wat vroeger een gemeentehuis en postkantoor is geweest, zal nu worden getransformeerd naar huurappartementen. Door de lift in het monument te herstellen worden de appartementen voor jong en oud geschikt. Op de begane grond zullen vier nultredenwoningen worden gerealiseerd voor medioren en senioren. De eerste en tweede verdieping zullen nog eens twee maal drie appartementen bevatten voor starters, senioren en alleenstaanden. De bestaande aanbouw uit 1980 zal gesloopt worden gezien het niet economisch verantwoord is deze te verbouwen. De aanbouw maakt plaats voor twee patiowoningen en zes beneden-bovenwoningen. De beneden-bovenwoningen zullen een geweldig uitzicht krijgen over het park dat achter de locatie ligt. Door een eigentijdse moderne uitstraling met houten gevelafwerking en een plat dak van de nieuwbouw blijft het karakteristiek van de gevel en kapvorm van het rijksmonument prominent op deze locatie zichtbaar. In de verbouwde toestand zullen de nieuwe appartementen geen gasaansluiting meer hebben en worden de woningen All-Electric. Door deze transformatie krijgt het rijksmonument een tweede leven en zal het, door het nieuwe gebruik als woongebouw, behouden blijven richting de toekomst.

















| Cookie | Duration | Description |
|---|---|---|
| cookielawinfo-checkbox-analytics | 11 months | This cookie is set by GDPR Cookie Consent plugin. The cookie is used to store the user consent for the cookies in the category "Analytics". |
| cookielawinfo-checkbox-functional | 11 months | The cookie is set by GDPR cookie consent to record the user consent for the cookies in the category "Functional". |
| cookielawinfo-checkbox-necessary | 11 months | This cookie is set by GDPR Cookie Consent plugin. The cookies is used to store the user consent for the cookies in the category "Necessary". |
| cookielawinfo-checkbox-others | 11 months | This cookie is set by GDPR Cookie Consent plugin. The cookie is used to store the user consent for the cookies in the category "Other. |
| cookielawinfo-checkbox-performance | 11 months | This cookie is set by GDPR Cookie Consent plugin. The cookie is used to store the user consent for the cookies in the category "Performance". |
| viewed_cookie_policy | 11 months | The cookie is set by the GDPR Cookie Consent plugin and is used to store whether or not user has consented to the use of cookies. It does not store any personal data. |