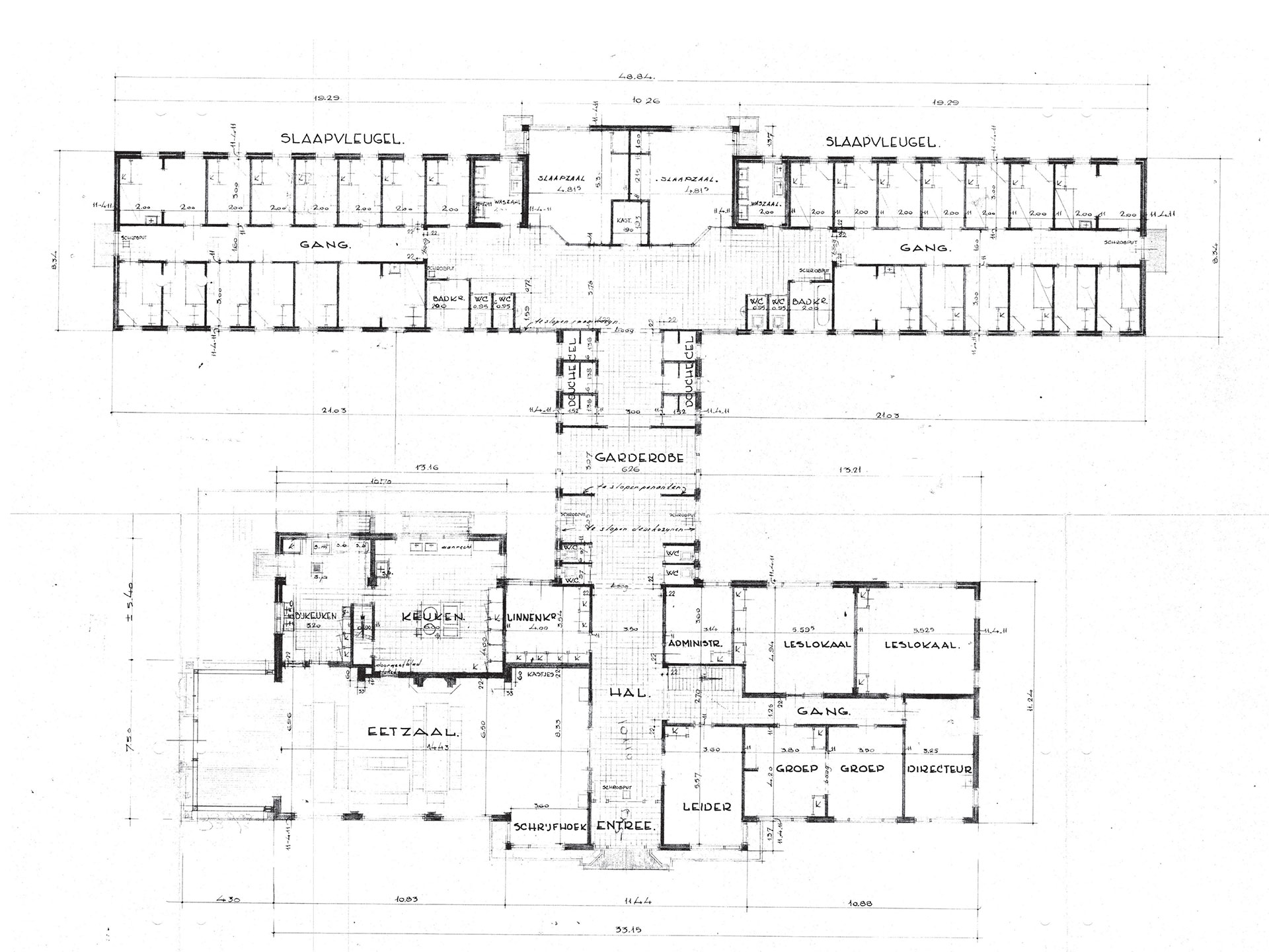
In de bossen bij Hollandsche Rading staat het oude internaat ‘Hertenkamp’. Vanaf de straat gezien valt het monumentale hoofdgebouw als markant gebouw met wit geschilderde gevels in deze bosrijke omgeving goed op. Met behoud van zorgbestemming maakt Toba architecten het ontwerp voor de herontwikkeling van dit pand met 30 tot 34 onzelfstandige zorgunits. Het te renoveren pand gaat een beschermde woonomgeving met 24-uursbegeleiding bieden aan mannen en vrouwen met triple problematiek (het samengaan van psychische stoornissen, verslaving en een lichtverstandelijke beperking). Doordat mensen hier een langere tijd verblijven, is de fysieke omgeving van grote invloed op de kwaliteit van de zorg. In het ontwerp wordt daarom rekening gehouden met verschillende facetten: huiselijkheid, ruimtes flexibel in kunnen zetten, toegankelijkheid en duurzaamheid.





| Cookie | Duration | Description |
|---|---|---|
| cookielawinfo-checkbox-analytics | 11 months | This cookie is set by GDPR Cookie Consent plugin. The cookie is used to store the user consent for the cookies in the category "Analytics". |
| cookielawinfo-checkbox-functional | 11 months | The cookie is set by GDPR cookie consent to record the user consent for the cookies in the category "Functional". |
| cookielawinfo-checkbox-necessary | 11 months | This cookie is set by GDPR Cookie Consent plugin. The cookies is used to store the user consent for the cookies in the category "Necessary". |
| cookielawinfo-checkbox-others | 11 months | This cookie is set by GDPR Cookie Consent plugin. The cookie is used to store the user consent for the cookies in the category "Other. |
| cookielawinfo-checkbox-performance | 11 months | This cookie is set by GDPR Cookie Consent plugin. The cookie is used to store the user consent for the cookies in the category "Performance". |
| viewed_cookie_policy | 11 months | The cookie is set by the GDPR Cookie Consent plugin and is used to store whether or not user has consented to the use of cookies. It does not store any personal data. |