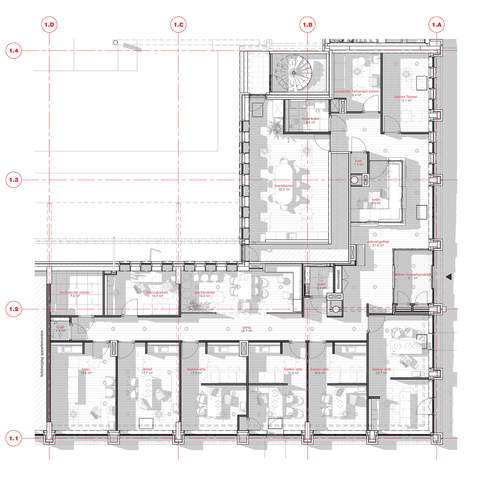
De huisartsenpraktijk wordt gerealiseerd in het te bouwen appartementencomplex op de Haringlocatie in Delft. In het ontwerp is gekozen voor uniforme materialisatie in de ruimtes, met gebruik van natuurlijke materialen en rustige kleuren, met groen als accentkleur. Wat zorgt voor een rustige sfeer. De praktijk is ruim opgezet en laat veel licht door. Wie binnenkomt in de centrale hal zal als eerst langs de balie worden geleid. Welke door gebruik te maken van hoogteverschillen ontworpen is om ook toegankelijk te zijn voor mensen in een rolstoel. De houten kozijnen met glas fungeren als scheidingsconstructie voor de balie en wachtruimte, waar men plaats kan nemen op verschillende type zitplekken en op maat ontworpen bankjes. De kamers van de artsen in de praktijk zijn duidelijk te herkennen aan de deuren uitgevoerd in de groene accentkleur en zijn tevens geluidsisolerend om de privacy van cliënten te kunnen waarborgen.




| Cookie | Duration | Description |
|---|---|---|
| cookielawinfo-checkbox-analytics | 11 months | This cookie is set by GDPR Cookie Consent plugin. The cookie is used to store the user consent for the cookies in the category "Analytics". |
| cookielawinfo-checkbox-functional | 11 months | The cookie is set by GDPR cookie consent to record the user consent for the cookies in the category "Functional". |
| cookielawinfo-checkbox-necessary | 11 months | This cookie is set by GDPR Cookie Consent plugin. The cookies is used to store the user consent for the cookies in the category "Necessary". |
| cookielawinfo-checkbox-others | 11 months | This cookie is set by GDPR Cookie Consent plugin. The cookie is used to store the user consent for the cookies in the category "Other. |
| cookielawinfo-checkbox-performance | 11 months | This cookie is set by GDPR Cookie Consent plugin. The cookie is used to store the user consent for the cookies in the category "Performance". |
| viewed_cookie_policy | 11 months | The cookie is set by the GDPR Cookie Consent plugin and is used to store whether or not user has consented to the use of cookies. It does not store any personal data. |