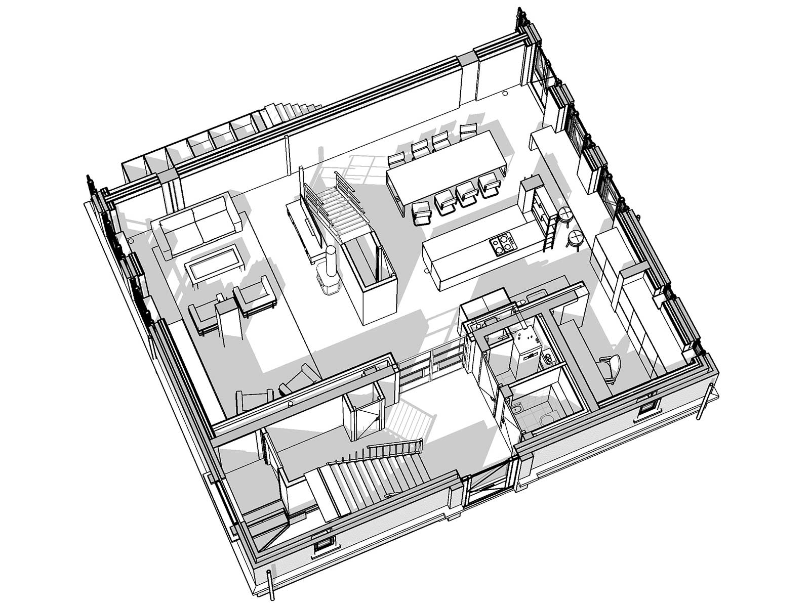
In een oud en monumentaal fabrieksgebouw op het Defensie-eiland te Woerden zijn 16 casco woonruimtes ter beschikking gesteld. Voor bouwnummer 75 is het casco verder ontworpen tot een woning die voldoet aan de huidige eisen van comfort en het bouwbesluit. In de woning is gebruik gemaakt van de vrije hoogte door een extra entresolvloer aan te brengen. De vide en de trap naar de entresol zijn een prominent onderdeel van de eetkeuken. De combinatie van een houten vloer met stalen kozijnen maken de woning tot een echte industriële loftwoning.




| Cookie | Duration | Description |
|---|---|---|
| cookielawinfo-checkbox-analytics | 11 months | This cookie is set by GDPR Cookie Consent plugin. The cookie is used to store the user consent for the cookies in the category "Analytics". |
| cookielawinfo-checkbox-functional | 11 months | The cookie is set by GDPR cookie consent to record the user consent for the cookies in the category "Functional". |
| cookielawinfo-checkbox-necessary | 11 months | This cookie is set by GDPR Cookie Consent plugin. The cookies is used to store the user consent for the cookies in the category "Necessary". |
| cookielawinfo-checkbox-others | 11 months | This cookie is set by GDPR Cookie Consent plugin. The cookie is used to store the user consent for the cookies in the category "Other. |
| cookielawinfo-checkbox-performance | 11 months | This cookie is set by GDPR Cookie Consent plugin. The cookie is used to store the user consent for the cookies in the category "Performance". |
| viewed_cookie_policy | 11 months | The cookie is set by the GDPR Cookie Consent plugin and is used to store whether or not user has consented to the use of cookies. It does not store any personal data. |