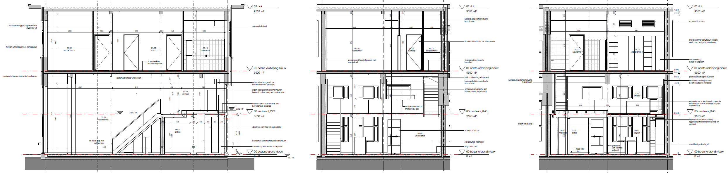
Dit langgerekte monument - een oud fabriekspand gevestigd op Defensie-eiland te Woerden - is opgesplitst in kleinere eenheden. De eenheden zijn als casco's verkocht. In casco Raamwerk 74 heeft Toba architecten deze moderne loftwoning ontworpen. Door de hoge ruimte was er de mogelijkheid om een extra vloer op te hangen aan de bestaande betonconstructie. Het resultaat is een hoge woonkamer met veel ruimte en licht. De keuken is onder de entresol geplaatst en is hierdoor intiemer. De entresol is uitgevoerd in staal met een houten balklaag. De houten zigzagtrap gecombineerd met de volledig glazen balustrade maken het minimalistisch karakter compleet. Via de entresol kom je langs de werkruimtes en ga je via de tweede trap naar de verdieping met de slaapvertrekken.






| Cookie | Duration | Description |
|---|---|---|
| cookielawinfo-checkbox-analytics | 11 months | This cookie is set by GDPR Cookie Consent plugin. The cookie is used to store the user consent for the cookies in the category "Analytics". |
| cookielawinfo-checkbox-functional | 11 months | The cookie is set by GDPR cookie consent to record the user consent for the cookies in the category "Functional". |
| cookielawinfo-checkbox-necessary | 11 months | This cookie is set by GDPR Cookie Consent plugin. The cookies is used to store the user consent for the cookies in the category "Necessary". |
| cookielawinfo-checkbox-others | 11 months | This cookie is set by GDPR Cookie Consent plugin. The cookie is used to store the user consent for the cookies in the category "Other. |
| cookielawinfo-checkbox-performance | 11 months | This cookie is set by GDPR Cookie Consent plugin. The cookie is used to store the user consent for the cookies in the category "Performance". |
| viewed_cookie_policy | 11 months | The cookie is set by the GDPR Cookie Consent plugin and is used to store whether or not user has consented to the use of cookies. It does not store any personal data. |