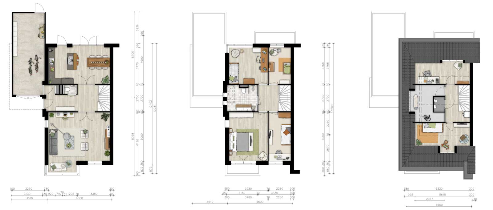
Na een succesvolle fase 1 van De Jonge Veenen (met 140 woningen) in Moerkapelle (gemeente Zuidplas) is de jaren 30 woonwijk met 230 woningen uitgebreid. De huizen zijn opvallend gevarieerd, waardoor het eruit ziet alsof de wijk natuurlijk gegroeid is. Overal waar je kijkt zie je mooie details. De variatie in steenkleur en metselverbanden, met staande stenen, verdiept of juist opliggend metselwerk. De profilering (randjes) van de boeilijsten bij het dak en de luifels. De gootplinten (andere kleur steen en spekrand onder de goot). De raamverdeling met zelfs uitstekende spijlen. Zelfs de schoorstenen zijn onder architectuur ontworpen. Het voegwerk niet alleen verdiept, maar ook extra donker. De ventilatieroosters zijn verborgen achter het metselwerk boven de kozijnen, een ventilatiesleuf vermomd als groef. Een aardig detail zijn de in de architectuur opgenomen bloembakken. Al deze klassieke elementen vindt u terug in De Jonge Veenen. Fris, nieuw en duurzaam gebouwd volgens de allernieuwste bouwvoorschriften.









| Cookie | Duration | Description |
|---|---|---|
| cookielawinfo-checkbox-analytics | 11 months | This cookie is set by GDPR Cookie Consent plugin. The cookie is used to store the user consent for the cookies in the category "Analytics". |
| cookielawinfo-checkbox-functional | 11 months | The cookie is set by GDPR cookie consent to record the user consent for the cookies in the category "Functional". |
| cookielawinfo-checkbox-necessary | 11 months | This cookie is set by GDPR Cookie Consent plugin. The cookies is used to store the user consent for the cookies in the category "Necessary". |
| cookielawinfo-checkbox-others | 11 months | This cookie is set by GDPR Cookie Consent plugin. The cookie is used to store the user consent for the cookies in the category "Other. |
| cookielawinfo-checkbox-performance | 11 months | This cookie is set by GDPR Cookie Consent plugin. The cookie is used to store the user consent for the cookies in the category "Performance". |
| viewed_cookie_policy | 11 months | The cookie is set by the GDPR Cookie Consent plugin and is used to store whether or not user has consented to the use of cookies. It does not store any personal data. |