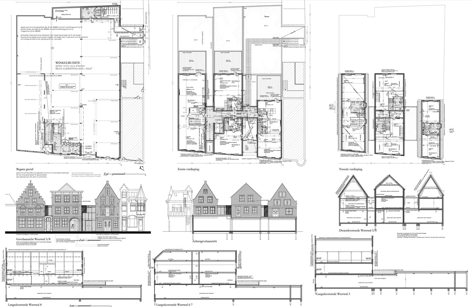
Aan de Weerwal te Purmerend staat één rijksmonument en 2 gemeentelijke monumenten. In deze drie panden was een drukkerij gevestigd. Nadat de drukkerij besloot zijn bedrijfsvoering op een andere locatie verder te zetten ontstond aan de Weerwal de mogelijkheid tot herontwikkeling. De panden zijn visueel van elkaar losgekoppeld zodat de parcelering weer duidelijk zichtbaar is geworden en de kwaliteit van individuele panden versterkt wordt. Ook is het middelste pand met één verdieping opgetopt. Op de begane grond is er ruimte gemaakt voor een grote winkelruimte en op de verdieping zijn vier monumentale stadsappartementen gerealiseerd. Aan het uiterlijk van de panden is met uitzondering van de optopping nagenoeg niks gewijzigd. Wel zijn de panden aan de binnenzijde op een passende wijze voorzien van moderne installaties. De verbouwing combineert het hedendaags woongenot met de charme van een pand uit 1899.

na renovatie
voor renovatie
| Cookie | Duration | Description |
|---|---|---|
| cookielawinfo-checkbox-analytics | 11 months | This cookie is set by GDPR Cookie Consent plugin. The cookie is used to store the user consent for the cookies in the category "Analytics". |
| cookielawinfo-checkbox-functional | 11 months | The cookie is set by GDPR cookie consent to record the user consent for the cookies in the category "Functional". |
| cookielawinfo-checkbox-necessary | 11 months | This cookie is set by GDPR Cookie Consent plugin. The cookies is used to store the user consent for the cookies in the category "Necessary". |
| cookielawinfo-checkbox-others | 11 months | This cookie is set by GDPR Cookie Consent plugin. The cookie is used to store the user consent for the cookies in the category "Other. |
| cookielawinfo-checkbox-performance | 11 months | This cookie is set by GDPR Cookie Consent plugin. The cookie is used to store the user consent for the cookies in the category "Performance". |
| viewed_cookie_policy | 11 months | The cookie is set by the GDPR Cookie Consent plugin and is used to store whether or not user has consented to the use of cookies. It does not store any personal data. |