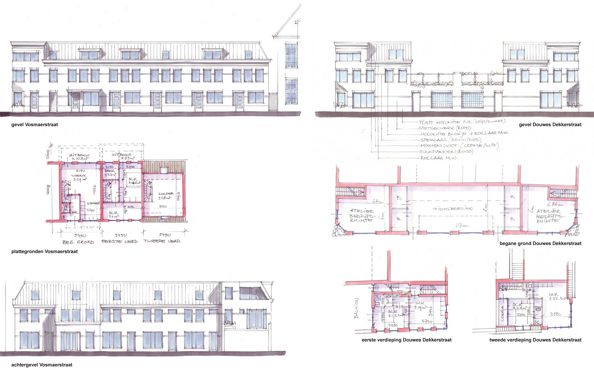
Voor "De Novelle van Utrecht" is de architectuur van de architectuur van de bestaande omgeving als uitgangspunt gebruikt. De detaillering van goot, de sierrollaag tussen goot en kozijn, de vorm van de ramen en ook de baksteen - warm rood - herinneren aan het verleden. Daarnaast zijn er eigentijdse accenten gebruikt zoals bijvoorbeeld de betonnen ornamenten. Modern en toch vertrouwd. Zodat het lijkt alsof "De Novelle van Utrecht" al veel langer bestaat.









| Cookie | Duration | Description |
|---|---|---|
| cookielawinfo-checkbox-analytics | 11 months | This cookie is set by GDPR Cookie Consent plugin. The cookie is used to store the user consent for the cookies in the category "Analytics". |
| cookielawinfo-checkbox-functional | 11 months | The cookie is set by GDPR cookie consent to record the user consent for the cookies in the category "Functional". |
| cookielawinfo-checkbox-necessary | 11 months | This cookie is set by GDPR Cookie Consent plugin. The cookies is used to store the user consent for the cookies in the category "Necessary". |
| cookielawinfo-checkbox-others | 11 months | This cookie is set by GDPR Cookie Consent plugin. The cookie is used to store the user consent for the cookies in the category "Other. |
| cookielawinfo-checkbox-performance | 11 months | This cookie is set by GDPR Cookie Consent plugin. The cookie is used to store the user consent for the cookies in the category "Performance". |
| viewed_cookie_policy | 11 months | The cookie is set by the GDPR Cookie Consent plugin and is used to store whether or not user has consented to the use of cookies. It does not store any personal data. |