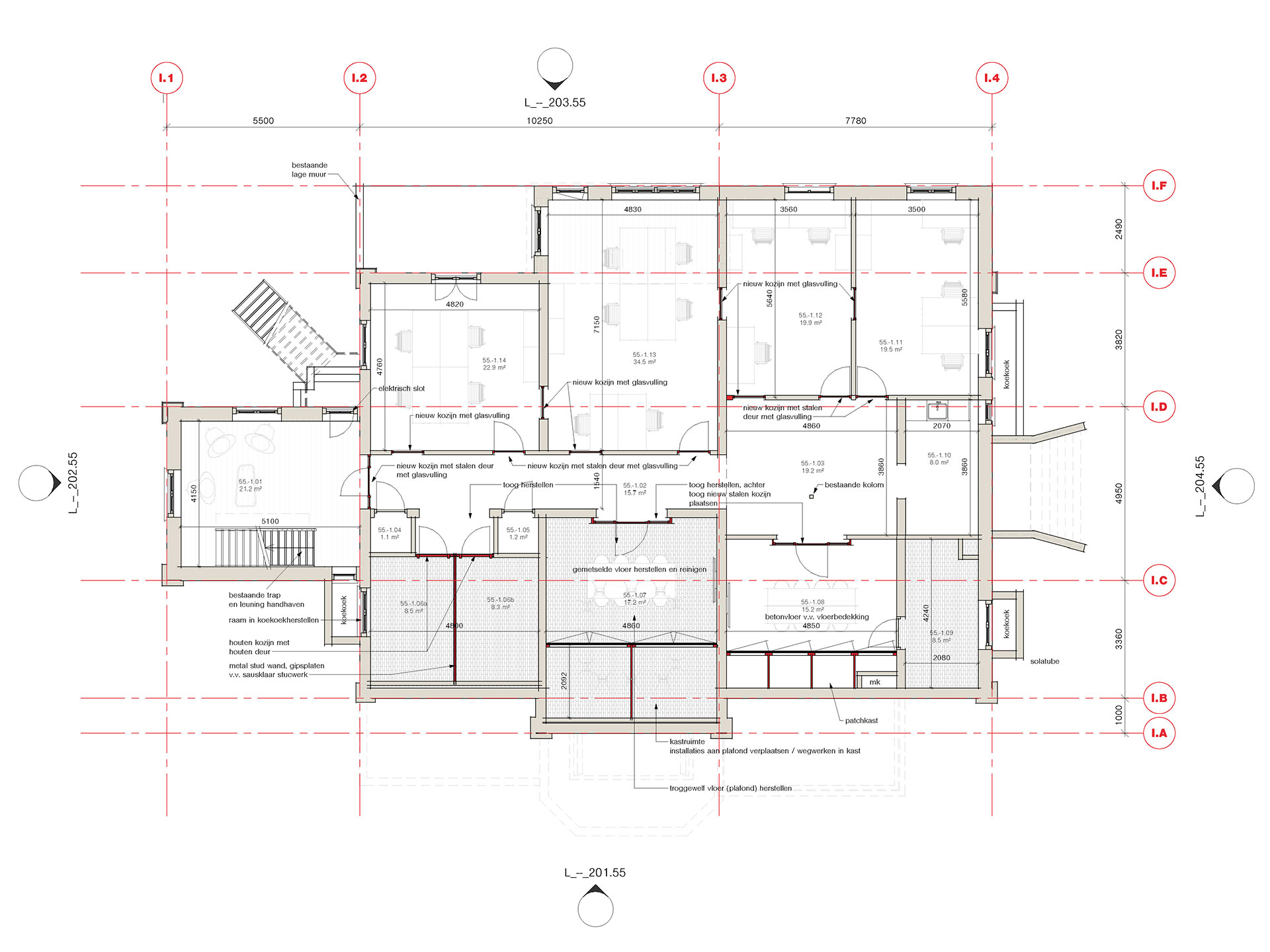
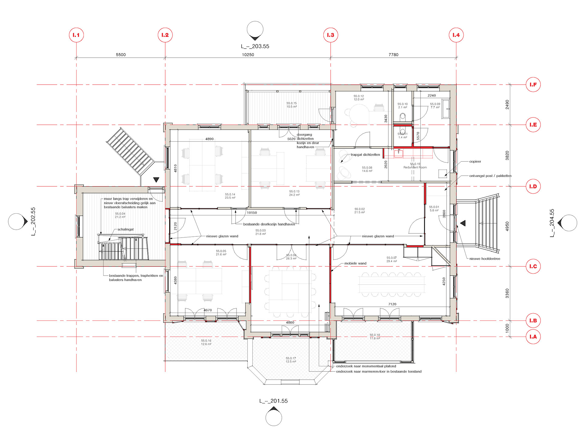
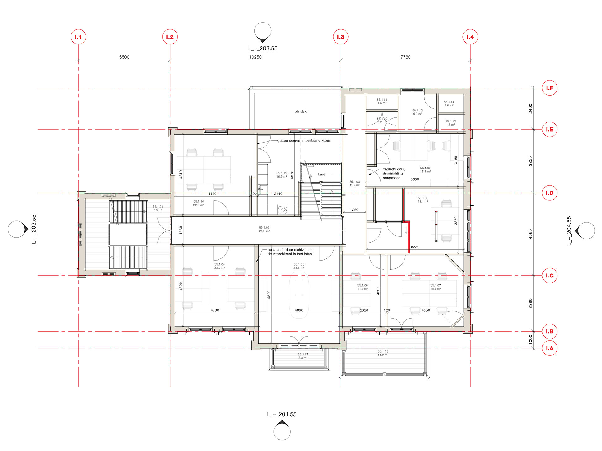
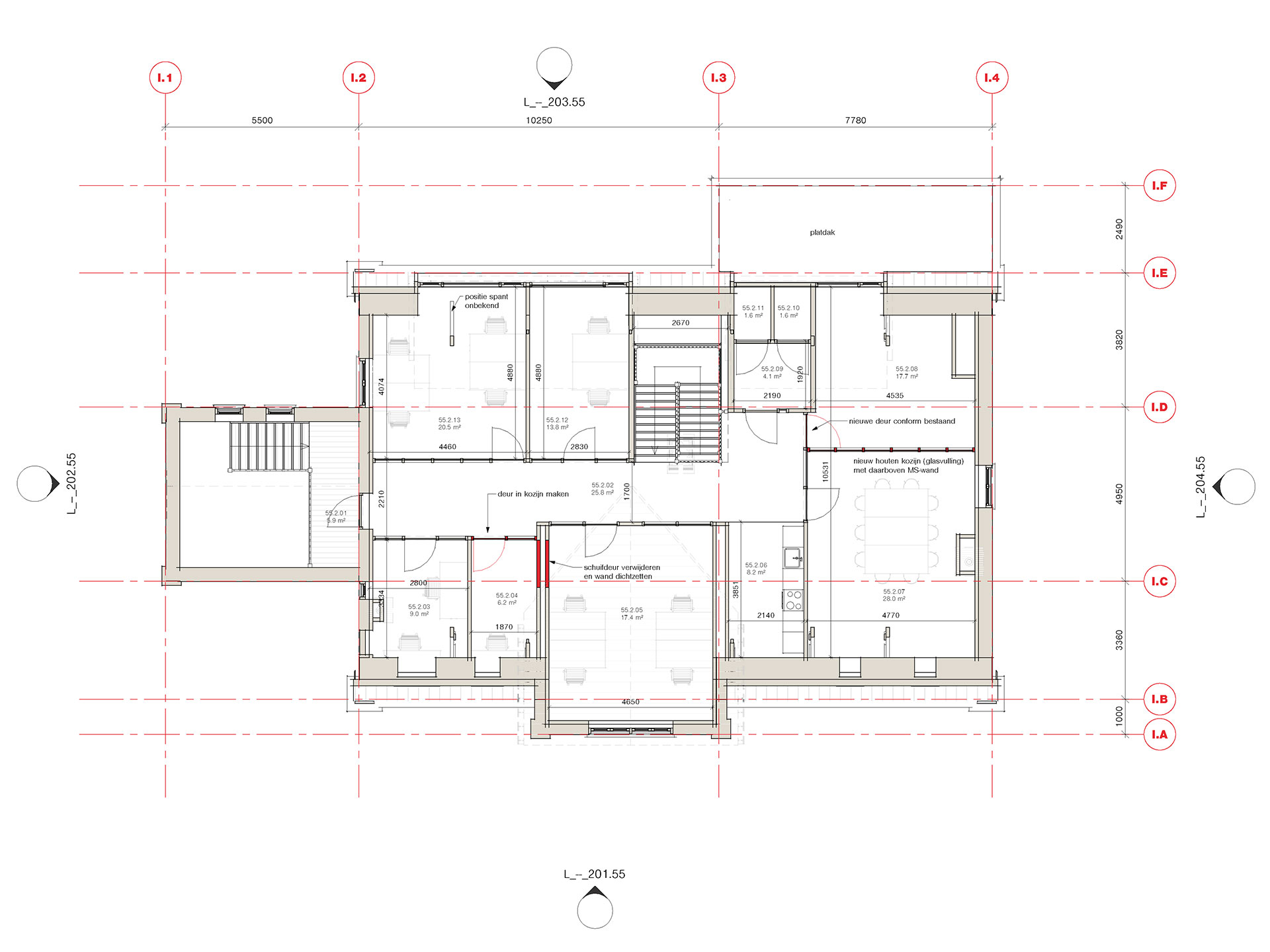
Als een parelsnoer staan langs de N225, de Utrechtse Heuvelrug, een reeks van prachtige buitenplaatsen. In Driebergen aan het begin van de Hoofdstraat vind je landgoed Beukenhorst. Op deze bijzondere locatie staan vier gebouwen, waarvan twee gemeentelijke monumenten: het herenhuis en koetshuis. Allerlei maatschappelijke (christelijke) organisaties hebben hier hun thuisbasis. Echter, door de groei van meerdere van deze organisaties is er behoefte aan extra ruimte. Om in deze behoefte te voorzien heeft Toba ontwerpen gemaakt voor de herontwikkeling van de bebouwing op dit landgoed. Het ontwerp voor het monumentale herenhuis is reeds doorgevoerd. Het herenhuis dat in gebruik is als kantoor had veel grote open ruimtes, de historische gangstructuur was verdwenen. In het nieuwe ontwerp is deze structuur teruggebracht en is de oorspronkelijke doorgang naar het oude trappenhuis hersteld. Door deze oorspronkelijke elementen te herintroduceren en het gebruik van eigentijdse materialen zoals aluminium binnenkozijnen en gestucte plafonds in plaats van systeemplafonds, past het nieuwe ontwerp bij zowel het monumentale pand als de huidige tijd. Verder zijn er in het souterrain, dat voornamelijk werd gebruikt als opslag, kantoor- en spreekruimtes gerealiseerd om extra ruimte te creëren. Met deze eerste optimalisatie is in een eerste deel van de ruimtebehoefte op het landgoed voldaan.
























| Cookie | Duration | Description |
|---|---|---|
| cookielawinfo-checkbox-analytics | 11 months | This cookie is set by GDPR Cookie Consent plugin. The cookie is used to store the user consent for the cookies in the category "Analytics". |
| cookielawinfo-checkbox-functional | 11 months | The cookie is set by GDPR cookie consent to record the user consent for the cookies in the category "Functional". |
| cookielawinfo-checkbox-necessary | 11 months | This cookie is set by GDPR Cookie Consent plugin. The cookies is used to store the user consent for the cookies in the category "Necessary". |
| cookielawinfo-checkbox-others | 11 months | This cookie is set by GDPR Cookie Consent plugin. The cookie is used to store the user consent for the cookies in the category "Other. |
| cookielawinfo-checkbox-performance | 11 months | This cookie is set by GDPR Cookie Consent plugin. The cookie is used to store the user consent for the cookies in the category "Performance". |
| viewed_cookie_policy | 11 months | The cookie is set by the GDPR Cookie Consent plugin and is used to store whether or not user has consented to the use of cookies. It does not store any personal data. |