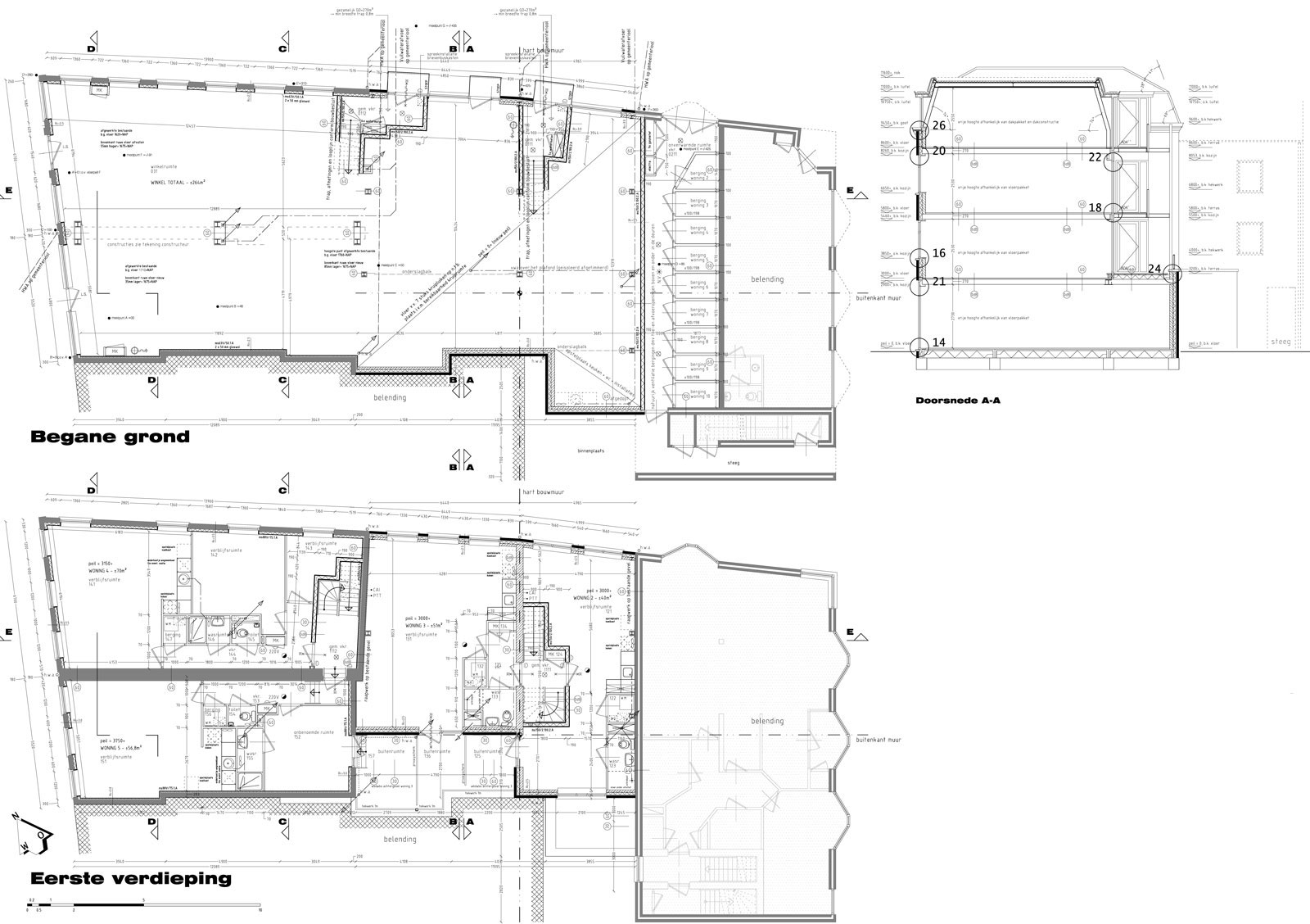
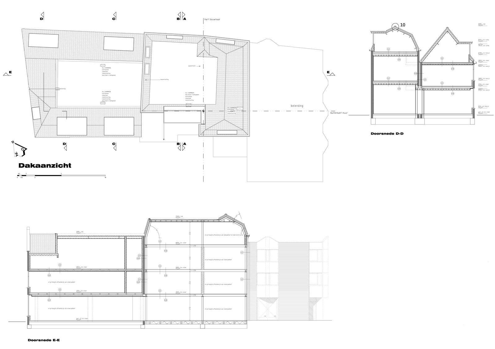
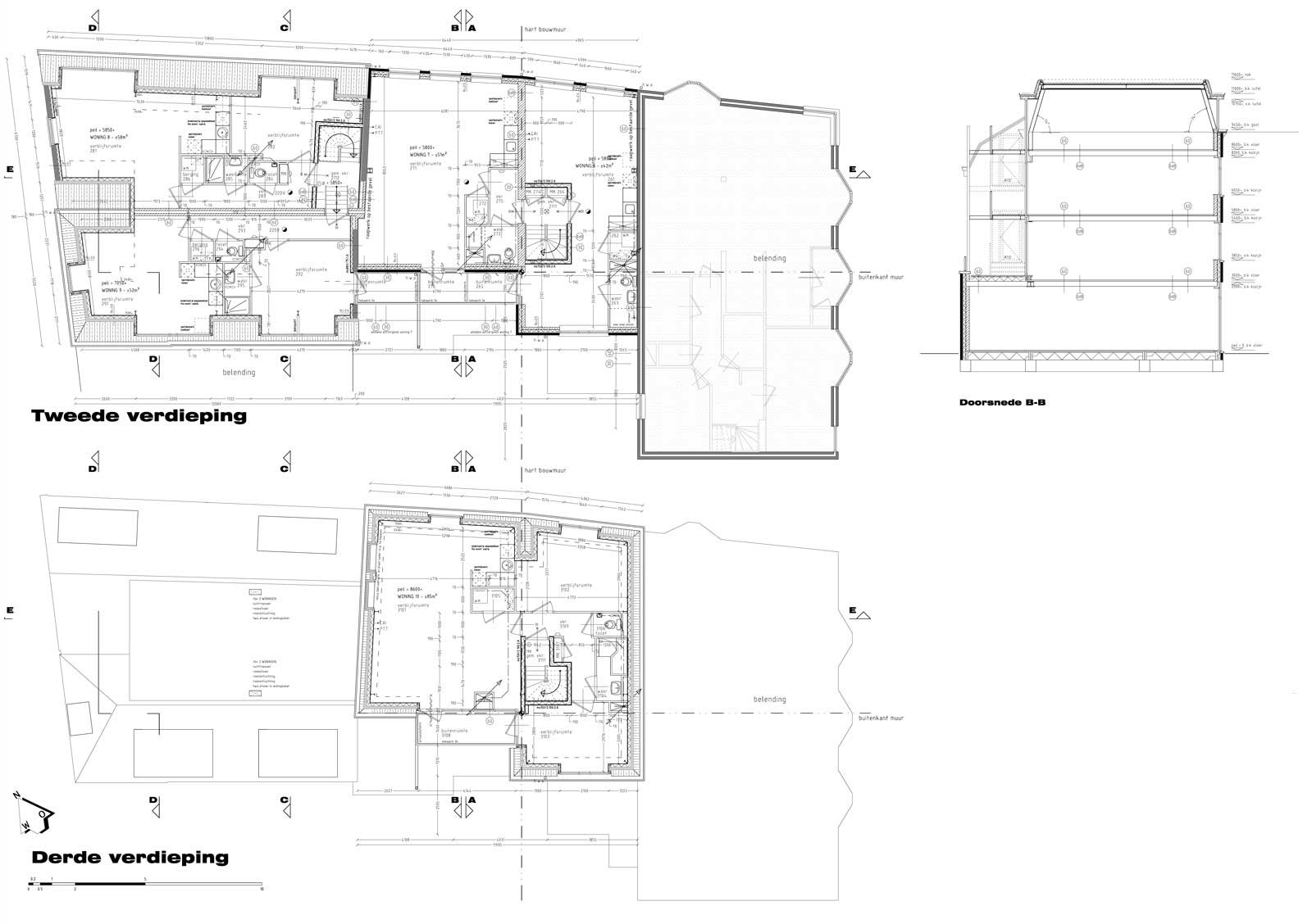
In een oude bakkerij aan de Peperstraat en Kerkstraat zijn acht appartementen en één nieuwe winkel gerealiseerd. Door het "wonen boven winkels" concept toe te passen wordt de sociale leefbaarheid met name na sluitingstijd van de winkels bevorderd. De appartementen varieeren van kleine studiowoningen van 40m² tot 2 kamer appartementen van 70m². Op de begane grond is een nieuwe winkel gerealiseerd van circa 260m². Ook zijn op de begane grond de entree tot het woongebouw en de gemeenschappelijke bergingen gerealiseerd.




| Cookie | Duration | Description |
|---|---|---|
| cookielawinfo-checkbox-analytics | 11 months | This cookie is set by GDPR Cookie Consent plugin. The cookie is used to store the user consent for the cookies in the category "Analytics". |
| cookielawinfo-checkbox-functional | 11 months | The cookie is set by GDPR cookie consent to record the user consent for the cookies in the category "Functional". |
| cookielawinfo-checkbox-necessary | 11 months | This cookie is set by GDPR Cookie Consent plugin. The cookies is used to store the user consent for the cookies in the category "Necessary". |
| cookielawinfo-checkbox-others | 11 months | This cookie is set by GDPR Cookie Consent plugin. The cookie is used to store the user consent for the cookies in the category "Other. |
| cookielawinfo-checkbox-performance | 11 months | This cookie is set by GDPR Cookie Consent plugin. The cookie is used to store the user consent for the cookies in the category "Performance". |
| viewed_cookie_policy | 11 months | The cookie is set by the GDPR Cookie Consent plugin and is used to store whether or not user has consented to the use of cookies. It does not store any personal data. |